NUOVA REALIZZAZIONE RESIDENZA "Graziella"


Lissone | 220.000,00 | Mq 64 | 2 | 1 | 1


Descrizione

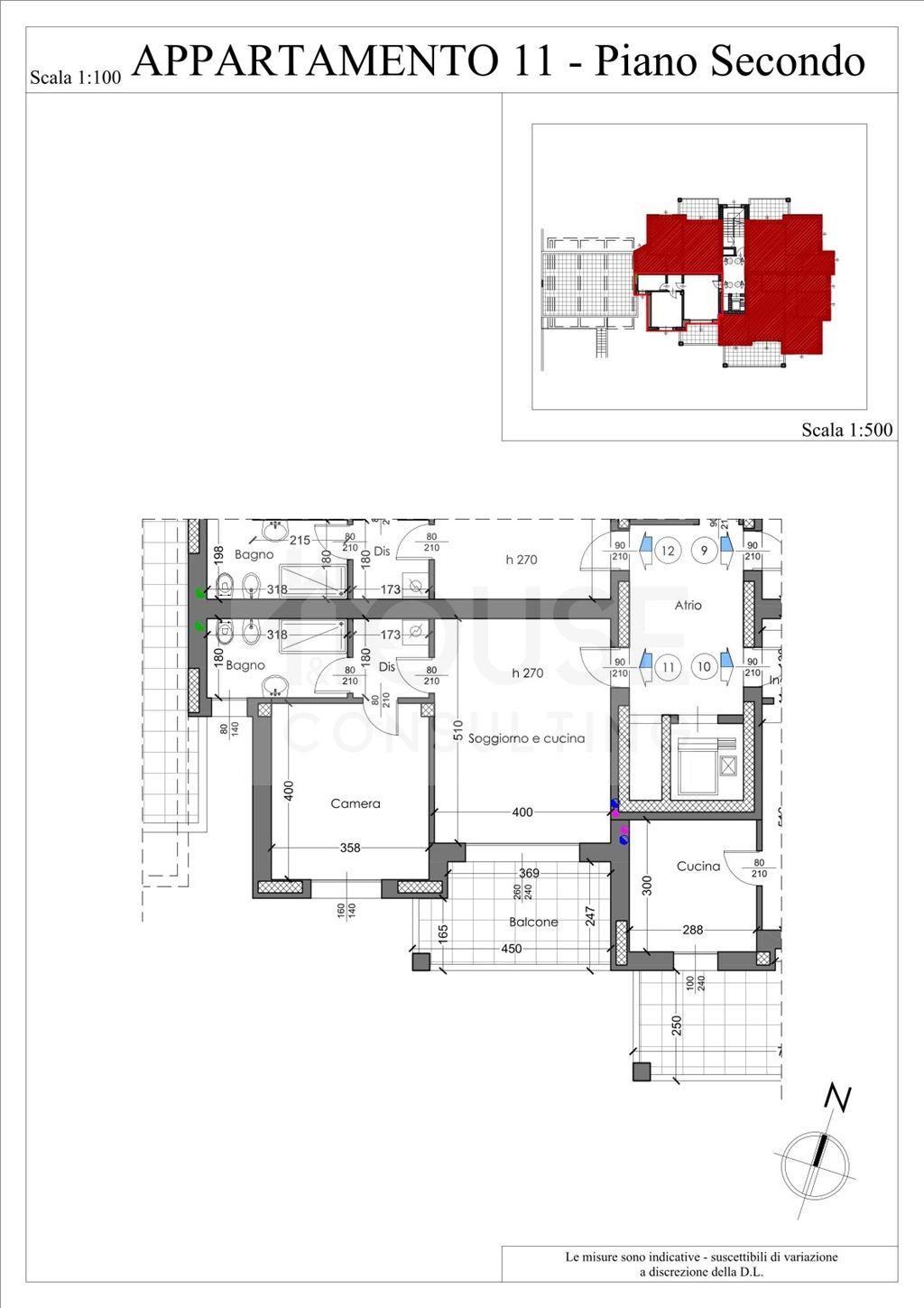
Residenza Graziella – Appartamento Rif. 11

Nel cuore di Lissone, a pochi passi dalla stazione FS e dai principali servizi, nasce un nuovo ed esclusivo progetto residenziale.
La “Residenza Graziella” propone 26 appartamenti di prossima realizzazione, da 2 e 3 locali, con ampi terrazzi o giardini privati, pensati per offrire un perfetto equilibrio tra design moderno, comfort abitativo ed efficienza energetica.

L’appartamento n. 11, situato al secondo piano, è composto da:

- Ingresso su luminoso soggiorno con ampia vetrata scorrevole e accesso al terrazzino
- Cucina abitabile
- Disimpegno zona notte
- Camera matrimoniale
- Bagno

Disponibilità di box singoli a partire da € 25.000, dotati di serranda sezionale automatica con telecomando, oppure posti auto scoperti a € 15.000.

Costruzione ad alto risparmio energetico, con Classe A e dotazioni di ultima generazione:

- Riscaldamento a pavimento
- Impianto fotovoltaico per la produzione di energia elettrica delle parti comuni
- Ventilazione meccanica controllata per il ricambio continuo dell’aria
- Isolamenti termici e acustici avanzati
- Serramenti in legno con triplo vetro certificati CasaClima
- Predisposizione per antifurto perimetrale e climatizzazione
- Tapparelle motorizzate con cassonetto a scomparsa
- Porte interne con cerniere a scomparsa e serratura magnetica

Finiture di alto livello: gres porcellanato o parquet, illuminazione LED su balconi e parti comuni, porte blindate e design contemporaneo.

Soluzioni ideali anche come investimento, grazie alla posizione strategica, vicina al centro di Lissone, alla stazione ferroviaria e a tutti i principali servizi (scuole, negozi, ristoranti, supermercati).

Per informazioni:
House&Consulting Arcore – Tel. 039 6012742 – www.hcarcore.it

Le immagini hanno scopo puramente illustrativo e non costituiscono elemento contrattuale.
Le misure riportate sono indicative e possono subire variazioni in fase di realizzazione.

  • Riferimento 2628
  • Contratto Vendita
  • Tipologia Appartamento
  • Prezzo 220.000,00
  • Mq 64
  • Locali 2
  • Camere 1
  • Bagni 1
  • Comune Lissone
  • Zona
  • Efficienza energetica certificazione energetica Classe A Ipe 15 KWh/m²a

  • Via S. Michele del Carso 16 Lissone

    Richiedi informazioni

    House & Consulting

    039/60.12.742

    Ai sensi e per gli effetti degli articoli 13 e 6 del Regolamento UE 2016/679, dichiaro di aver preso visione dell’informativa di House & Consulting by Multiservice Srl per il trattamento dei dati personali.

    NUOVA REALIZZAZIONE RESIDENZA "Graziella"

    Lissone | 220.000,00 | Mq 64 | 2 | 1 | 1 | RIF 2628

    Via S. Michele del Carso 16 - Lissone -

    Residenza Graziella – Appartamento Rif. 11

    Nel cuore di Lissone, a pochi passi dalla stazione FS e dai principali servizi, nasce un nuovo ed esclusivo progetto residenziale.
    La “Residenza Graziella” propone 26 appartamenti di prossima realizzazione, da 2 e 3 locali, con ampi terrazzi o giardini privati, pensati per offrire un perfetto equilibrio tra design moderno, comfort abitativo ed efficienza energetica.

    L’appartamento n. 11, situato al secondo piano, è composto da:

    - Ingresso su luminoso soggiorno con ampia vetrata scorrevole e accesso al terrazzino
    - Cucina abitabile
    - Disimpegno zona notte
    - Camera matrimoniale
    - Bagno

    Disponibilità di box singoli a partire da € 25.000, dotati di serranda sezionale automatica con telecomando, oppure posti auto scoperti a € 15.000.

    Costruzione ad alto risparmio energetico, con Classe A e dotazioni di ultima generazione:

    - Riscaldamento a pavimento
    - Impianto fotovoltaico per la produzione di energia elettrica delle parti comuni
    - Ventilazione meccanica controllata per il ricambio continuo dell’aria
    - Isolamenti termici e acustici avanzati
    - Serramenti in legno con triplo vetro certificati CasaClima
    - Predisposizione per antifurto perimetrale e climatizzazione
    - Tapparelle motorizzate con cassonetto a scomparsa
    - Porte interne con cerniere a scomparsa e serratura magnetica

    Finiture di alto livello: gres porcellanato o parquet, illuminazione LED su balconi e parti comuni, porte blindate e design contemporaneo.

    Soluzioni ideali anche come investimento, grazie alla posizione strategica, vicina al centro di Lissone, alla stazione ferroviaria e a tutti i principali servizi (scuole, negozi, ristoranti, supermercati).

    Per informazioni:
    House&Consulting Arcore – Tel. 039 6012742 – www.hcarcore.it

    Le immagini hanno scopo puramente illustrativo e non costituiscono elemento contrattuale.
    Le misure riportate sono indicative e possono subire variazioni in fase di realizzazione.

    Efficienza energetica Classe A Ipe 15 KWh/m²a


    Via Umberto I, 67 20862 - Arcore- Tel. 039 60 12 742